Appartement 3 pièces – 61.95 m² – Quartier Saint-Serge, Angers
À proximité des commodités et des transports, ce 3 pièces lumineux offre un cadre de vie agréable et pratique. Balcon et parking inclus pour un confort optimal.
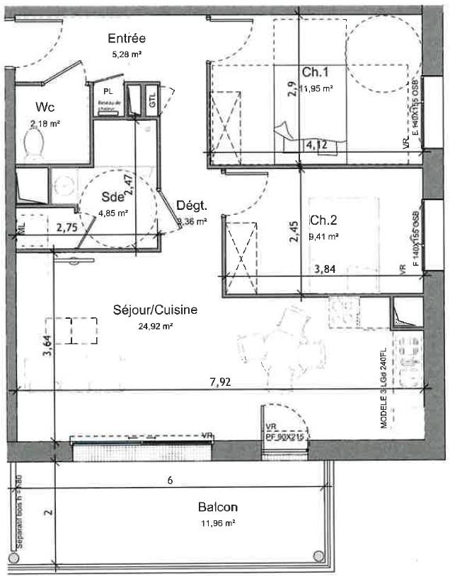
Logement
3 pièces – 61.95 m²
4ème étage, immeuble avec ascenseur
Séjour avec cuisine ouverte
2 chambres
1 salle d’eau avec espace buanderie
W-C séparés
Balcon
Parking privatif
Chauffage et eau collectif
Localisation
Quartier Saint-Serge : calme et pratique
Transports et commerces à proximité
Conditions
Loyer : 777 € + 145 € / mois
Dépôt de garantie : 777 €
Disponible : Février 2026
Revenus demandés : 3x le loyer
Merci de prévoir un dossier complet (revenus : 3x le loyer).
ATTENTION dispositif PINEL. Le candidat à la location ne doit pas avoir des ressources supérieures à 35 825 € (personne seule) / 47 842 € (couple) / 57 531 € (couple avec 1 enfant) / 69 455€ (couple avec 2 enfants) sur la déclaration d'impôt 2025 sur l'année 2024.
Performance énergétique
Montant des dépenses théoriques annuelles d’énergie
Coût annuel (min) : 210.00 €
Coût annuel (max) : 330.00 €
Année de référence : 2023
Informations complémentaires
Charges annuelles :
0,00 €
Frais visite/dossier/bail locataire :
0,00 €
Frais état des lieux locataire :
279,00 €
Dépot de garantie:
777,00 €
Mandat
Téléphone mandataire :
+33241873717
E-mail mandataire :
Veuillez utiliser le formulaire de contact ci-dessous ...
Nous avons recours à des cookies techniques pour assurer le bon fonctionnement du site, nous utilisons également des cookies soumis à votre consentement pour collecter des statistiques de visite. Cliquez ci-dessous sur « ACCEPTER » pour accepter le dépôt de l'ensemble des cookies ou sur « CONFIGURER » pour choisir quels cookies nécessitant votre consentement seront déposés (cookies statistiques), avant de continuer votre visite du site. Plus d'informations