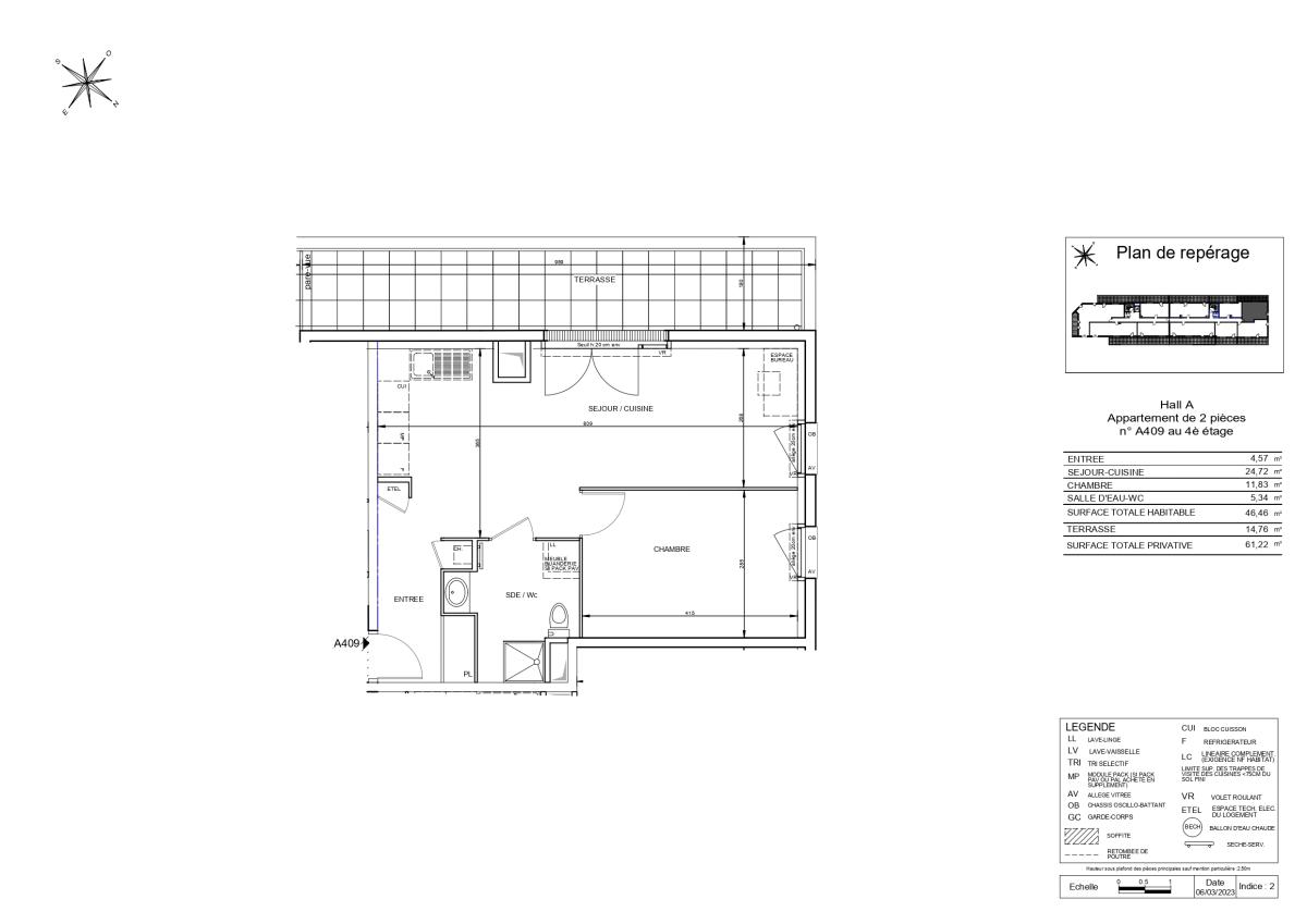
À louer : Type 2 à Trélazé, quartier de la Quantinnière, à proximité des bus.
Location d'un appartement T2 neuf situé au 4e étage, comprenant :
Une entrée avec placard,
Un séjour ouvert sur une cuisine aménagée et équipée avec placard,
Une salle d'eau, un WC,
Une chambre.
L'appartement dispose également d'une terrasse et d'une place de parking en sous-sol.
Disponible en avril 2026, logement PINEL.
Chauffage individuels.
Merci de prévoir un dossier complet.
Il est nécessaire de justifier de 3 fois le montant du loyer en revenu.
Performance énergétique
Caractéristiques
Cuisine :
oui
Terrasse :
oui
Parking :
oui
Informations complémentaires
Charges annuelles :
0,00 €
Frais visite/dossier/bail locataire :
0,00 €
Frais état des lieux locataire :
0,00 €
Dépot de garantie:
600,00 €
Mandat
Téléphone mandataire :
+33241873717
E-mail mandataire :
Veuillez utiliser le formulaire de contact ci-dessous ...
Nous avons recours à des cookies techniques pour assurer le bon fonctionnement du site, nous utilisons également des cookies soumis à votre consentement pour collecter des statistiques de visite. Cliquez ci-dessous sur « ACCEPTER » pour accepter le dépôt de l'ensemble des cookies ou sur « CONFIGURER » pour choisir quels cookies nécessitant votre consentement seront déposés (cookies statistiques), avant de continuer votre visite du site. Plus d'informations